VERSION HISTORY
LIRA-FEM
Drawings
Updated ‘Automatic Reinforcement’ tool with ‘Pattern’ option
In the updated version of the Arrange reinforcement automatically tool, there is a new options - Patterns, which improves the process of generating the zones of additional reinforcement in floor slabs.
Tool Description:
In the Patterns dialog box, the user could manage a set of dimension-types for the additional reinforcement. Here it is possible to define the standard parameters that will be used for the automatic arrangement of reinforcement in the slab, taking into account the design and real values of reinforcement.
Configuration options:
- Rebar diameter
- Rebar spacing
- Grid dimensions (BxH)
The program takes into account that not every dimension-type set can perfectly meet all design requirements. Therefore, flexibility is maintained for correct adaptation to avoid errors due to inappropriate patterns. If the specified dimension-types meet the design situation, the program will give priority to these standard variants.
Benefits:
- Efficiency: The generation of reinforcement patterns for slabs speeds up because the suitable dimension-types are applied automatically.
- Save and reuse: Frequently used parameters of grids may be saved and applied to future projects, increasing productivity and convenience.
This tool ensures quick and precise arrangement of reinforcement by emphasising the use of diameters and dimensions relevant to the design situation.
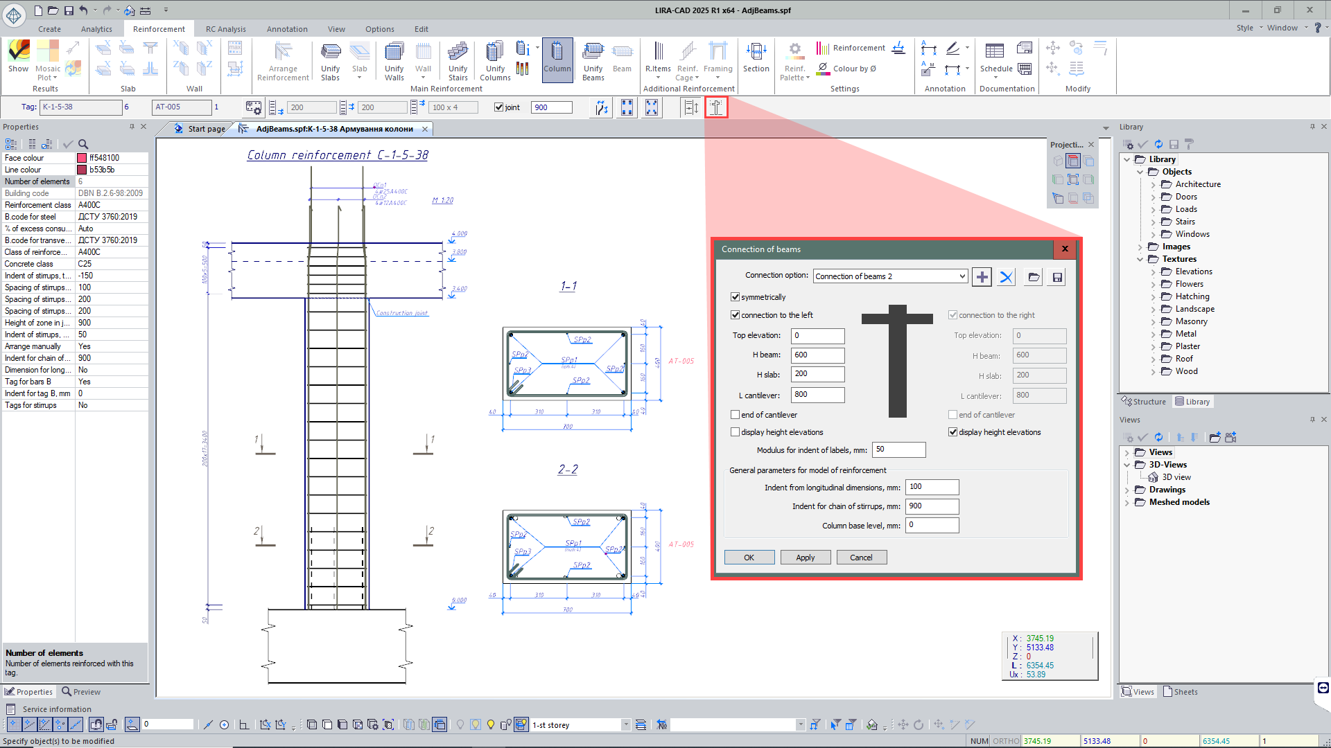
Tool for detailed drawings of beam-to-column connection
The tool for detailed generation of drawings for columns with adjacent beams (Beam-to-column connection dialog box). This tool allows the user to edit and customize parameters for the presentation of beam/slab-to-column connections on the drawing of reinforcement.
Key Functions:
Connections: In the dialog box it is possible to specify the elevations of the top edges of the adjacent elements, the thickness of the slabs and beams, and the dimensions of the cantilever part if there is no extension of horizontal elements. For symmetrical connections, select the appropriate check box to define the parameters and apply them to both sides.
Setting up a vertical cut:
- Customize the dimension lines to take account of adjacent beams and slabs to form a correct chain with vertical dimensions.
- Define indents for the dimensional chain of stirrups, longitudinal dimensions and column base elevations.
- To make design procedure easier, introduce a different method of labelling stirrups and longitudinal rebars.
Flexibility and efficiency:
All settings can be saved as a preset that will be applied to current or future projects. This significantly speeds up the generation of quality drawings with accurate parameters for connections, minimises errors, and optimises the work process. The tool increases the speed and provides the user-friendly workflow as the user could repeatedly apply pre-defined parameters, save time, and ensure high-quality design.
Options to generate drawings
-
New option to define the nonuniform load in arbitrary directions on a group of nodes/bars/plates; this option will be useful in specifying load from snow mound, nonuniform load on walls from soil pressure, etc.
-
New option to move selected nodes to a specified node, to a specified line or to the axis of a chain of bars. This tool will be useful, for example, when correcting the triangulation of a network with plane FEs. It is also useful when models are imported with some deviation of bars from vertical or horizontal.
-
New option: offsets for selected bars will be generated in the selected nodes.
-
New options to visualize centres of forces according to calculated coordinates and load vectors according to calculated total loads, loads on fragment, inertial loads and weights of masses.
-
New mode in which only model elements with assigned stiffness types / materials / types of pilot reinforcement (PR) highlighted in the corresponding lists will be displayed / fragmented. The fragmentation command may be applied to the whole model and to the current model fragment.
-
For all types of loads (except for loads in time history analysis), it is possible to edit loads in groups. The user could modify the group of loads highlighted in the list. Only load parameters (values, snaps, etc.) may be modified. Load type, coordinate system, direction of load are not modified.
-
New option to edit in groups the nonlinear stiffnesses for standard types of sections, plates, solids and stiffness of joint; option to edit in groups the linear stiffnesses and linear stiffnesses with modified values of stiffness properties (editable stiffnesses).
Note.
If several stiffnesses of the same type are highlighted in the list, you can edit them as a group. In this case, the input fields of the dialog box will contain only values that are the same for all stiffnesses in the group. When values of parameter (visible or hidden) are modified, they will be assigned to each of the stiffnesses in the group. When you modify the linear, editable, nonlinear stiffnesses (in any combination) in groups, it is not possible to modify parameters of editable and nonlinear stiffnesses.
-
In the "Convert results to loads" dialog box, new option "Separate loads on fragment by load cases". When this option is selected, the calculated loads on the fragment (foundation) for each load case are converted into nodal loads and applied to the nodes in the initial load cases. In this case, new load cases are not created.
-
It is allowed to create punching shear contours when the lower node of column (punching node) is below the slab and when the upper node of column (punching node) is above the slab.
Unification
One of the key features of the program is the option to generate unified structural elements based on theoretical reinforcement obtained from strength analysis. This option is now available for various types of elements, including:
- floor slab
- foundation slab
- column
- beam
- stairs.
In the new version of the program this functionality is expanded, and now unification can also be performed for reinforced concrete walls. The wall unification is similar to the unification of framework elements, which is already familiar to users. The interface of the working window is divided into three zones: the list of all walls with descriptions of their properties is presented on the left, the schematic presentation of the wall with reinforcement contour plots is displayed on the right, and on the top there is a filter that makes it easy to browse through the list of walls in the project.
This tool is one more step in helping engineers easily process large amounts of information about walls. It enables you to unify walls, taking into account not only the geometrical properties of the elements and their location in the framework but also the results obtained in the analysis of reinforcement carried out for these elements.
List of reinforcement items
The amount of reinforcing steel is one of the key technical and financial indicators of a building project. At the stage of the architectural model, the consumption of reinforcing steel may be obtained (in detail) in LIRA-CAD module version 2024
The Total list of reinforcement command is available on the View tab, on the Information panel, see the Schedule menu.
When you activate this command, the Total list of reinforcement dialog box is displayed. In tabular form, you will see the consumption of reinforcement presented in detail by rebar diameter and concrete volume.
The geometric properties of the structure (the length, height, thickness, and section dimensions) are taken into account when calculating the actual amount of concrete. It also takes into account situations where element models overlap, for example, beams in a floor slab (the volume of the part of the beam immersed in the slab is automatically subtracted from the volume of the slab).
The quantity of reinforcement in a structure can be represented by weight or length (in tonnes or in r.m.).
The most accurate information about the consumption of reinforcement may be obtained based on the following data:
- strength analysis and selected theoretical reinforcement;
- reinforcement model created in LIRA-CAD (RC) module:
- for bars, according to types of reinforcement (TR);
- according to the type of pilot reinforcement (PR type).
In the "Total list of reinforcement" dialog box, it is possible to filter the items in the list by layers, storeys, objects or highlighted rows.
Pile arrangement
In LIRA-CAD module version 2024, it is possible to create the documentation view "Pile arrangement". In this view, all piles in the building are shown with sign notation. Optionally, each pile can be labelled with its pile number and the elevation of the pile head.
Based on the provided data, a table with "List of piles" can be created for the drawing with "Pile arrangement". This table will contain brief but necessary information about the piles, including the following parameters:
-
Number of piles of standard type;
-
Symbols (sign notation) on the drawing;
-
Length of piles;
-
Elevation of the pile head.
This table will be a useful tool to organize the data regarding the piles available for the project.
Legend of piles and columns
-
In LIRA-CAD module, it is possible to generate a pile schedule and a legend of symbols (sign notation). This information is placed on the drawing sheet in the form of an editable table.
-
Reinforcement types (that are templates for arrangement of rebars in the body of the corresponding RC elements of the structure) can be exported to a DXF file or placed on drawing sheets as editable tables. Tables can be arranged on sheets with many columns if the project involves a variety of reinforcement types. Alternatively, continuation sheets with appropriate table heading format can be used.
Other improvements related to the generation of drawings
-
The "Update contours" command is implemented for walls. This option allows you not to lose the arrangement of reinforcement in elements when the wall geometry is modified in the model. When adding openings, changing the wall length, and using the "Update contours" command, it is enough to update the previously created model of wall reinforcement.
-
For more convenient work with objects that are created on the "Drawing" view, new tools are added:
- mirror copy;
- object scaling;
- equidistant.
-
In the new version of the program, it is possible to define the scale on the drawing individually for each view image on the sheet. That is, if the same view is presented on the sheet several times, then each of its images may be displayed on a different scale. Usually, the reinforcement view is presented several times on the sheet. It is the reinforcement pattern in the slab in different locations: at the top or at the bottom edge of the slab, along numerical or along letter axes. Now each representation can appear on the sheet at its own individual scale.









